Перейти к контенту
Подбор и сравнение проектов домов от застройщиков Московской области
Подборщик домов
Калькулятор сметы
Калькулятор площади
Форум
Блог
Главная
›
Каталог проектов
›
Проект дома «Калинин» | ЭкоТех
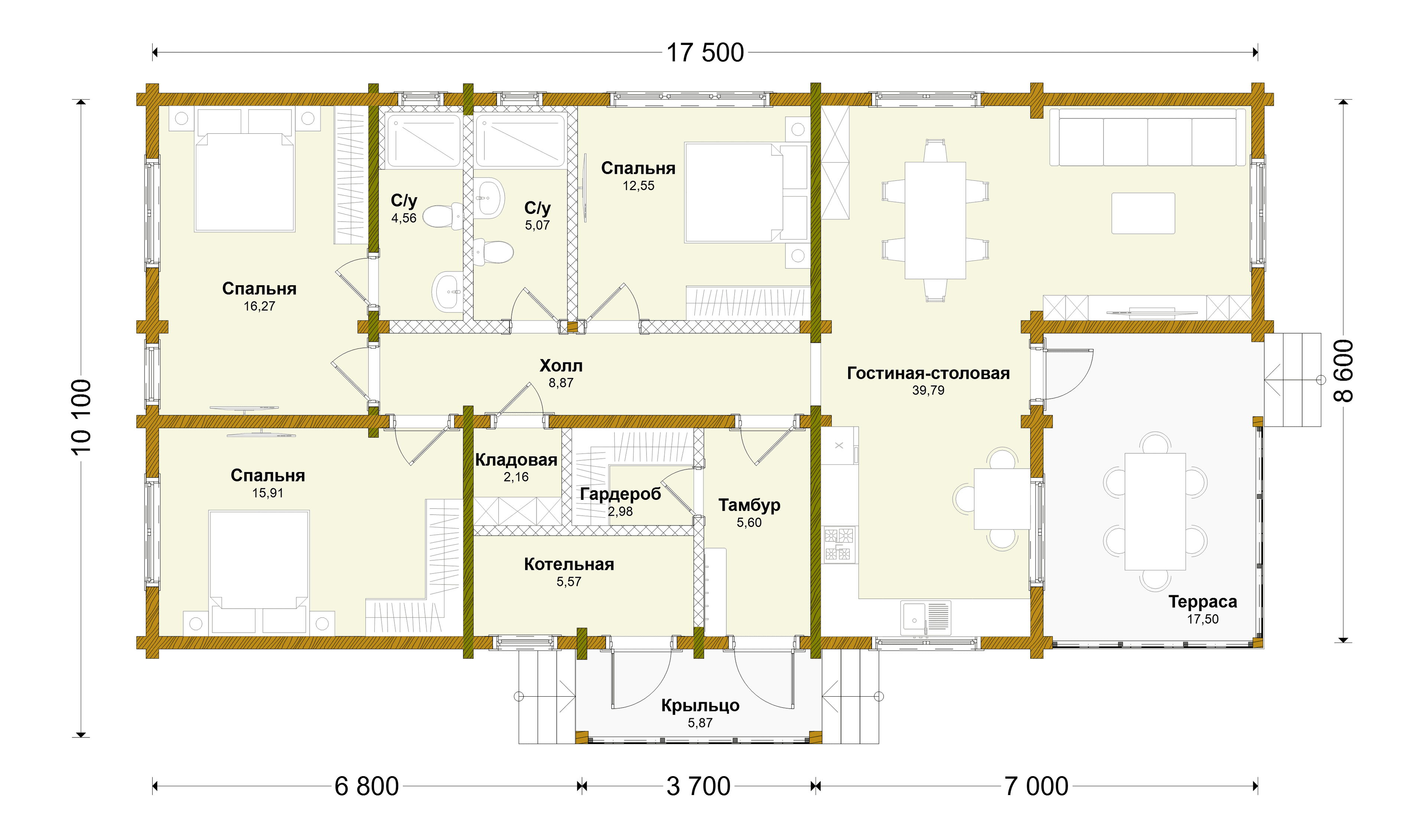
Проект дома «Калинин» | ЭкоТех
Застройщик: Эко-Тех
156.1 м²
1 / 2
🏠
156.1 м²
🛏
3 спален
🚿
2 санузл.
📐
1 этаж
🧱
Клееный брус
Похожие проекты
Похожие по цене
Похожие по площади
Кирпичный дом С-248 К «Бета»
4 спальн. · 3 санузл. · 4 этаж
от 11 055 000 ₽
→
Проект D-074-1D
1 этаж
от 11 047 500 ₽
→
Проект R-193-1K
1 этаж
от 11 045 400 ₽
→
Проект дома «Флинт»
3 спальн. · 1 этаж
от 13 138 000 ₽
→
Проект одноэтажного каркасного дома "Корсика"
4 спальн. · 2 этаж
от 11 429 963 ₽
→
Проект одноэтажного каркасного дома "Щипок"
4 спальн. · 2 этаж
от 11 338 523 ₽
→
На сайт застройщика