Перейти к контенту
Подбор и сравнение проектов домов от застройщиков Московской области
Подборщик домов
Калькулятор сметы
Калькулятор площади
Форум
Блог
Главная
›
Каталог проектов
›
Проект дома «Кипарис» | ЭкоТех
Проект дома «Кипарис» | ЭкоТех
Застройщик: Эко-Тех
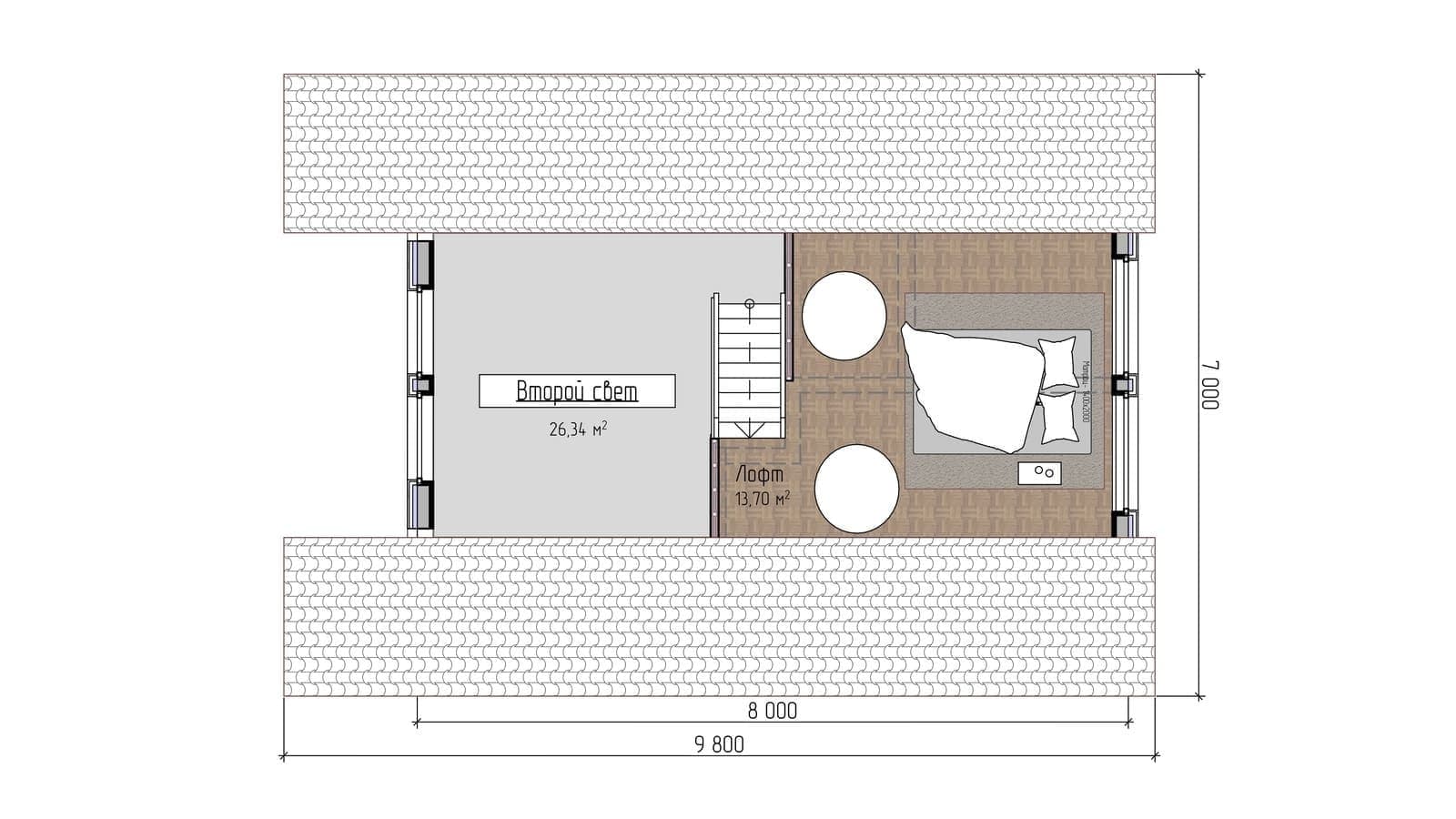
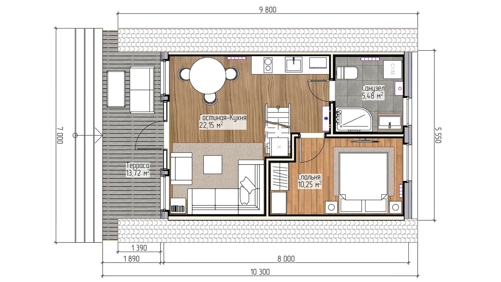
76.2 м²
1 / 3
🏠
76.2 м²
🛏
2 спален
🚿
1 санузл.
📐
2 этаж
🧱
Каркас
Похожие проекты
Похожие по цене
Похожие по площади
Аврора 12
4 спальн. · 3 санузл. · 2 этаж
от 4 149 800 ₽
→
Дом «Жуков» 7,5х13 м
2 спальн. · 1 этаж
от 4 150 000 ₽
→
Проект C-210-1S
1 этаж
от 4 137 000 ₽
→
Проект P-076-1P
2 этаж
от 5 334 000 ₽
→
Барн 9
3 спальн. · 1 санузл. · 1 этаж
от 3 756 000 ₽
→
Мечта 8
2 этаж
от 4 339 800 ₽
→
На сайт застройщика