Перейти к контенту
Подбор и сравнение проектов домов от застройщиков Московской области
Подборщик домов
Калькулятор сметы
Калькулятор площади
Форум
Блог
Главная
›
Каталог проектов
›
Проект дома «Крым» | ЭкоТех
Проект дома «Крым» | ЭкоТех
Застройщик: Эко-Тех
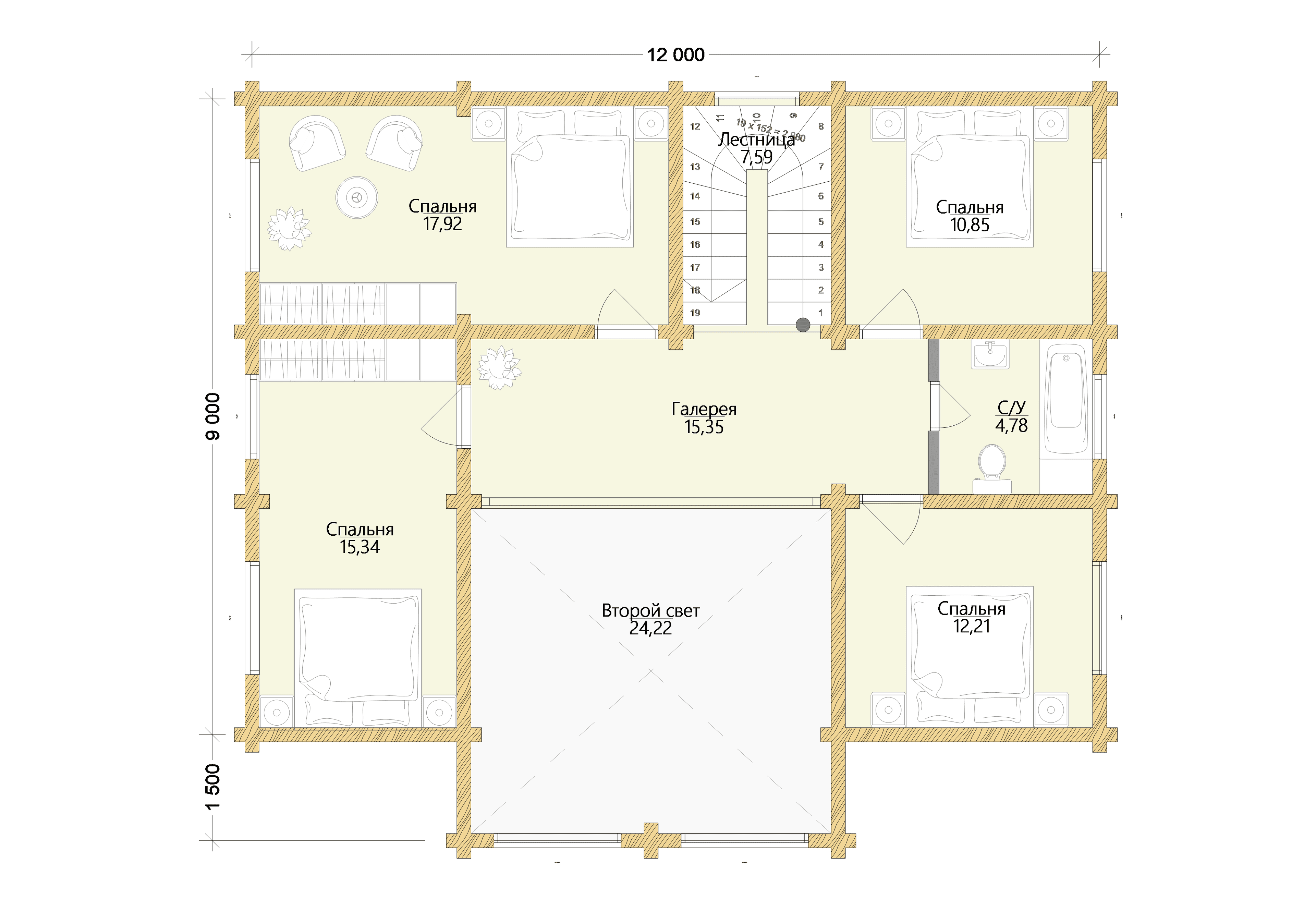
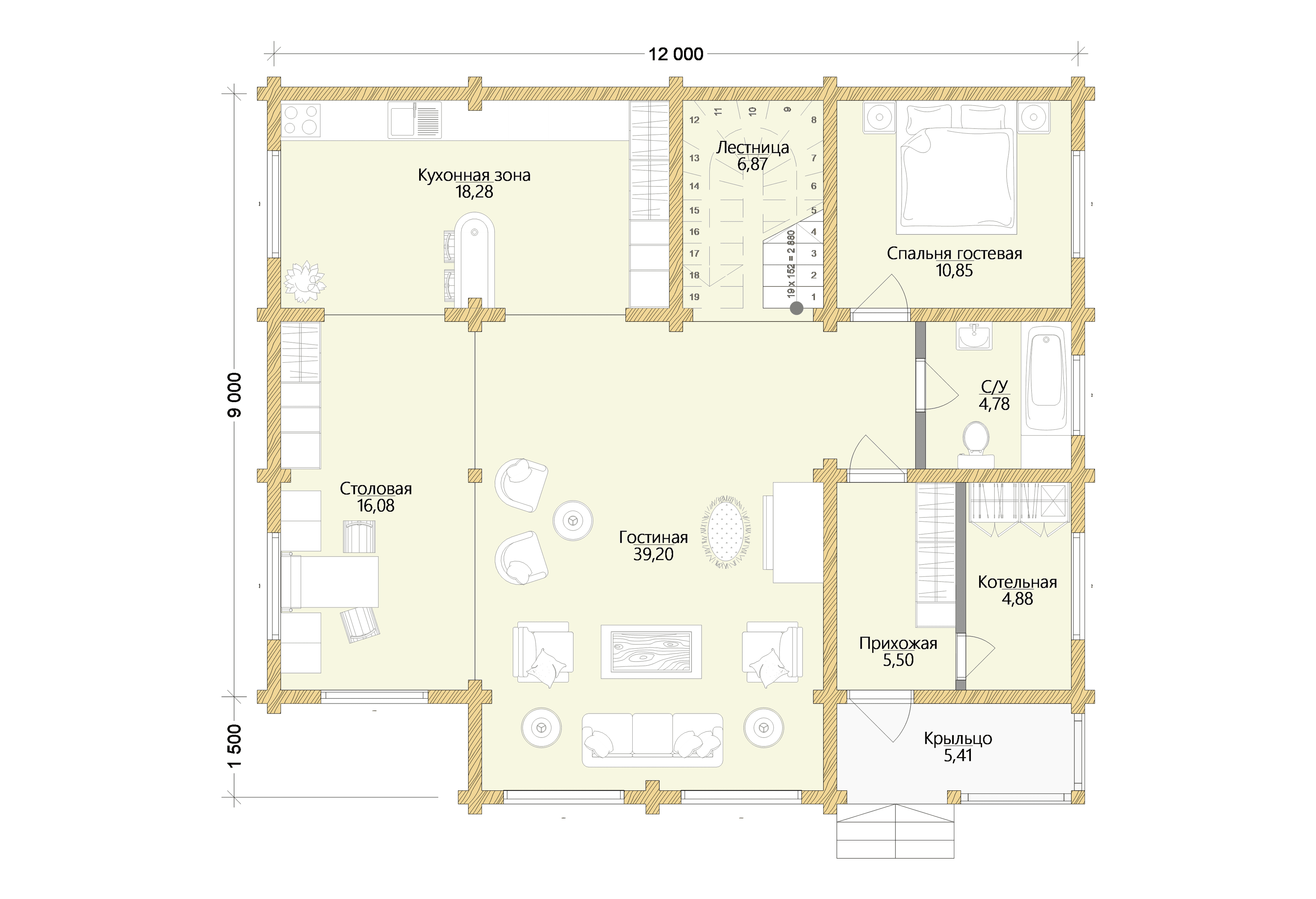
204.0 м²
1 / 3
🏠
204.0 м²
🛏
5 спален
🚿
2 санузл.
📐
2 этаж
🧱
Клееный брус
Похожие проекты
Похожие по цене
Похожие по площади
Проект O-160-1K
2 этаж
от 13 152 800 ₽
→
Проект U-176-1P
2 этаж
от 13 156 500 ₽
→
Проект дома из керамоблоков 19х15 ТКБ-161: цена 9368000 руб.
3 спальн. · 2 санузл. · 1 этаж
от 13 158 000 ₽
→
A-004
2 санузл. · 1 этаж
от 15 000 000 ₽
→
Проект двухэтажного дома "Уголок-М8" из бруса
3 спальн. · 2 этаж
от 12 035 253 ₽
→
Проект одноэтажного коттеджа "Рея" из газобетона
5 спальн. · 1 этаж
от 14 487 000 ₽
→
На сайт застройщика