Перейти к контенту
Подбор и сравнение проектов домов от застройщиков Московской области
Подборщик домов
Калькулятор сметы
Калькулятор площади
Форум
Блог
Главная
›
Каталог проектов
›
Проект дома «Лесная сказка» | ЭкоТех
Проект дома «Лесная сказка» | ЭкоТех
Застройщик: Эко-Тех
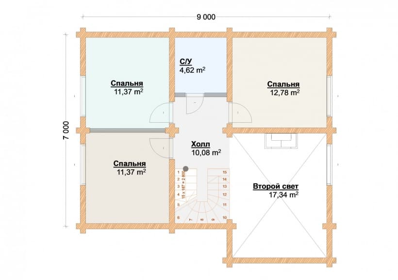
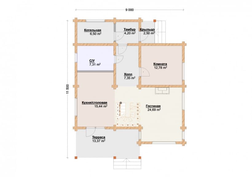
158.0 м²
1 / 3
🏠
158.0 м²
🛏
4 спален
🚿
2 санузл.
📐
2 этаж
🧱
Клееный брус
Похожие проекты
Похожие по цене
Похожие по площади
Проект К-159 9 на 16, площадью 280 за 9 396 000 руб
3 спальн. · 2 этаж
от 9 396 000 ₽
→
Проект одноэтажного дома "Антарес" из бруса
4 спальн. · 2 этаж
от 9 395 969 ₽
→
Проект каркасного дома с мансардой Шале XXL под ключ от компании БАКО
2 этаж
от 9 395 800 ₽
→
Проект одноэтажного каркасного дома "Пилигрим"
5 спальн. · 2 этаж
от 11 887 161 ₽
→
Проект одноэтажного дома с террасой Flat-02-158 м² — Домострой
4 спальн. · 2 санузл. · 1 этаж
от 14 167 870 ₽
→
Дом по проекту «ЗС 795-20» - Золотое Сечение
4 спальн. · 2 санузл.
от 19 750 000 ₽
→
На сайт застройщика