Перейти к контенту
Подбор и сравнение проектов домов от застройщиков Московской области
Подборщик домов
Калькулятор сметы
Калькулятор площади
Форум
Блог
Главная
›
Каталог проектов
›
Проект дома «Павловск» | ЭкоТех
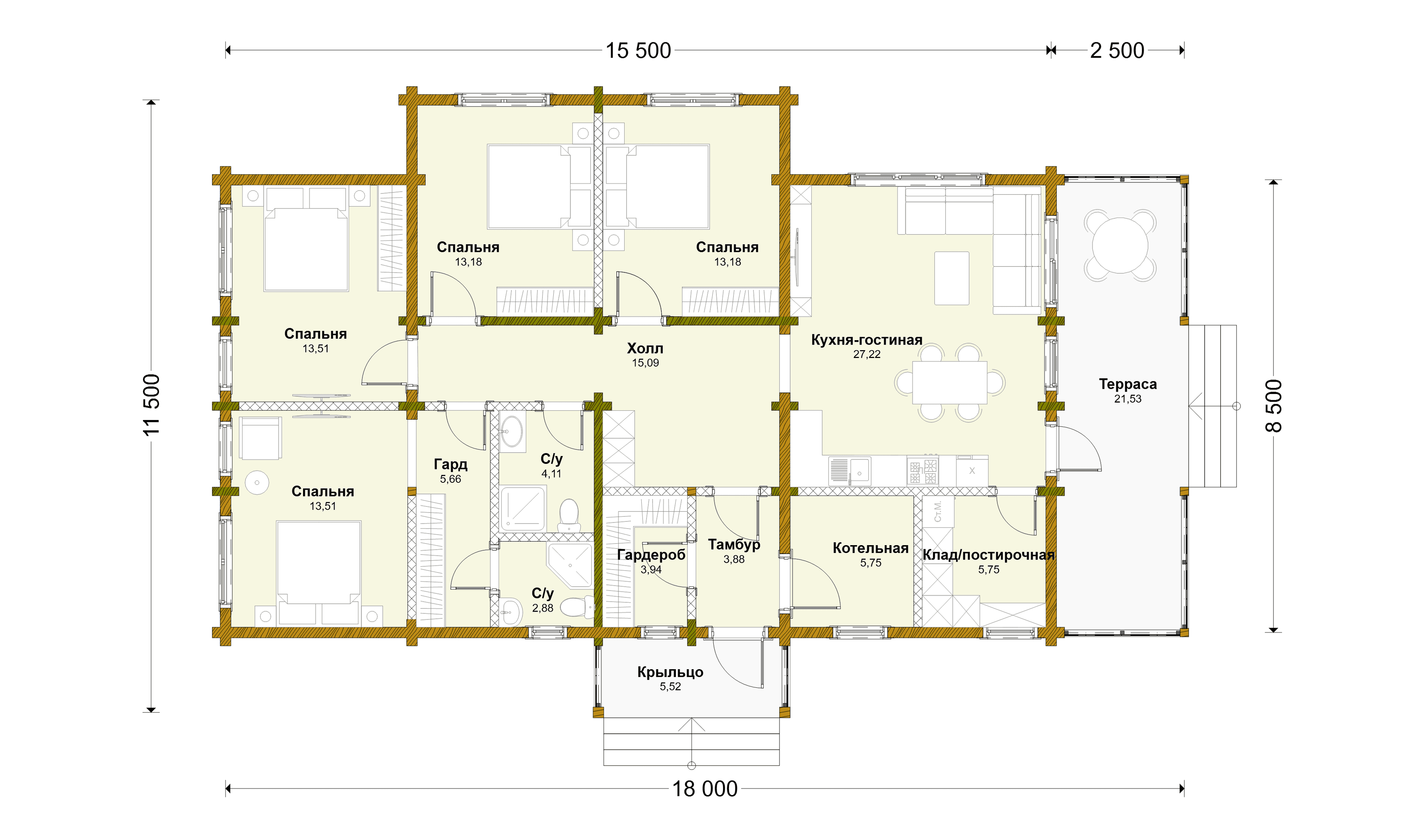
Проект дома «Павловск» | ЭкоТех
Застройщик: Эко-Тех
168.8 м²
1 / 2
🏠
168.8 м²
🛏
4 спален
🚿
2 санузл.
📐
1 этаж
🧱
Клееный брус
Похожие проекты
Похожие по цене
Похожие по площади
Проект дома F-155-1P
2 этаж
от 10 878 000 ₽
→
Проект R-155-2P
1 этаж
от 10 876 600 ₽
→
Проект дома "Бейнар"
4 спальн. · 2 этаж
от 10 876 462 ₽
→
Проект одноэтажного каркасного дома "Бавария"
5 спальн. · 2 этаж
от 12 284 092 ₽
→
Дом каркасный "Барн-Лофт"
3 спальн. · 3 санузл. · 1 этаж
от 10 600 000 ₽
→
Проект U-168-1K
2 этаж
от 13 852 260 ₽
→
На сайт застройщика