Перейти к контенту
Подбор и сравнение проектов домов от застройщиков Московской области
Подборщик домов
Калькулятор сметы
Калькулятор площади
Форум
Блог
Главная
›
Каталог проектов
›
Проект дома «Пушкино» | ЭкоТех
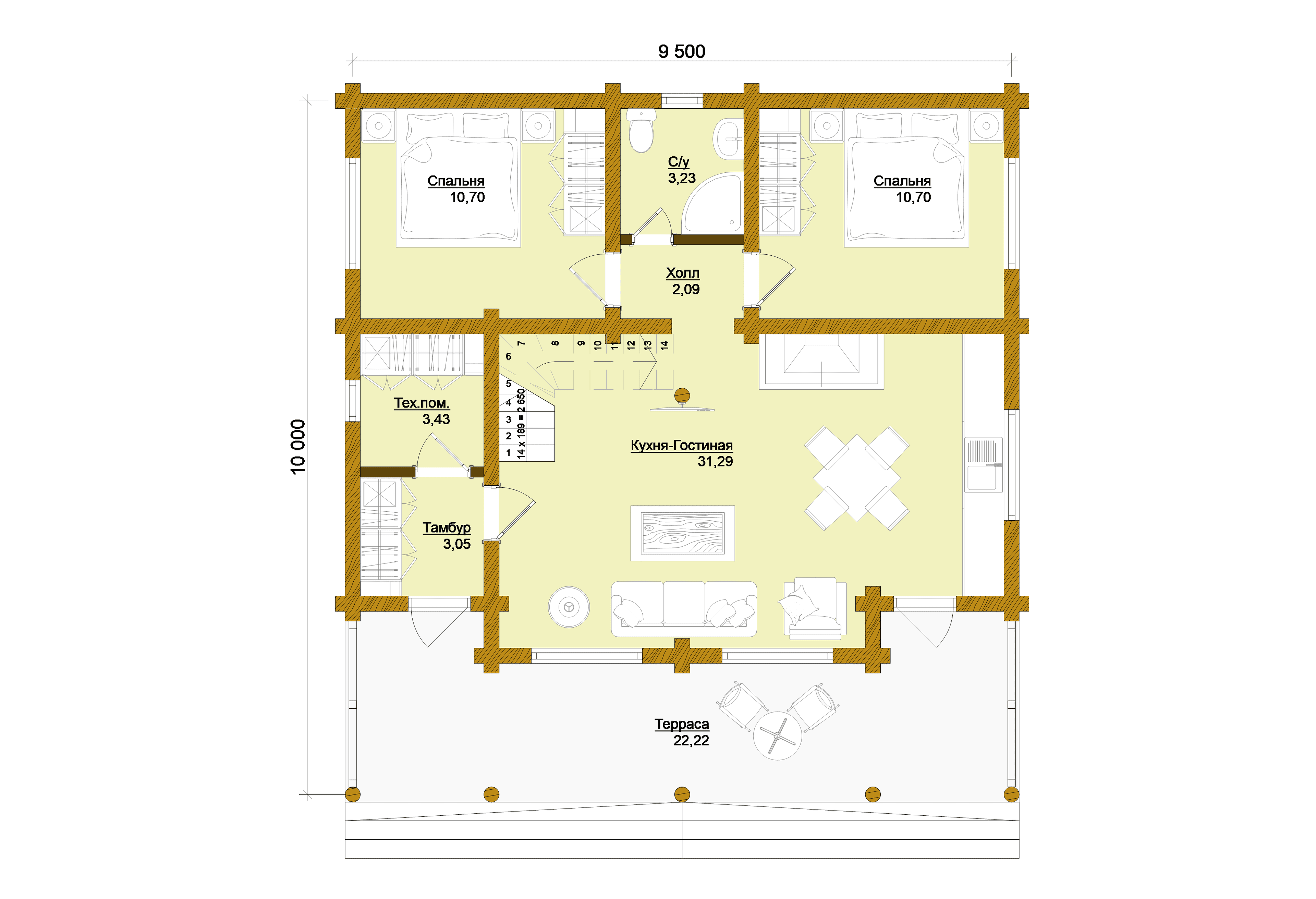
Проект дома «Пушкино» | ЭкоТех
Застройщик: Эко-Тех
107.5 м²
1 / 3
🏠
107.5 м²
🛏
3 спален
🚿
1 санузл.
📐
2 этаж
🧱
Оцилиндрованное бревно
Похожие проекты
Похожие по цене
Похожие по площади
Модульный дом «Коммунар
от 3 375 000 ₽
→
Модульный дом «Сколково
от 3 375 000 ₽
→
ПД - 151-3 - Строительство домов из Каркаса, СИП, Бруса под ключ
5 спальн. · 2 санузл. · 2 этаж
от 3 370 000 ₽
→
Проект каркасного дома с мансардой Звенигород M под ключ от компании БАКО
3 спальн. · 2 санузл. · 2 этаж
от 5 415 300 ₽
→
Проект G-107-1P
1 этаж
от 7 522 900 ₽
→
Проект дома «Бойд»
3 спальн. · 1 этаж
от 9 037 000 ₽
→
На сайт застройщика