Перейти к контенту
Подбор и сравнение проектов домов от застройщиков Московской области
Подборщик домов
Калькулятор сметы
Калькулятор площади
Форум
Блог
Главная
›
Каталог проектов
›
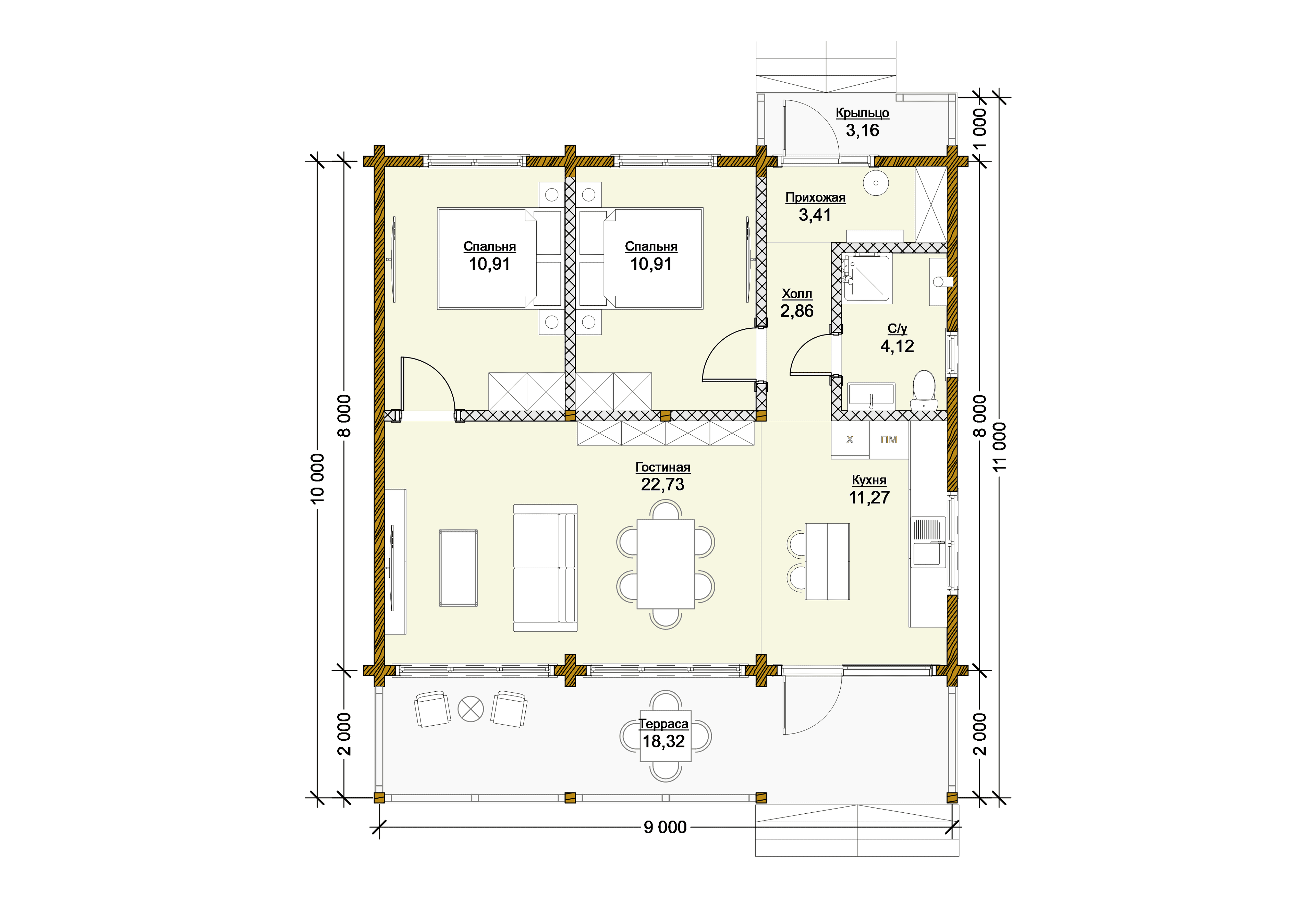
Проект дома "Троицк" под ключ | ЭкоТех
Проект дома "Троицк" под ключ | ЭкоТех
Застройщик: Эко-Тех
93.0 м²
1 / 2
🏠
93.0 м²
🛏
2 спален
🚿
1 санузл.
📐
1 этаж
🧱
Клееный брус
Похожие проекты
Похожие по цене
Похожие по площади
Проект M-062-1D
2 этаж
от 9 300 000 ₽
→
Проект G-133-1P
2 этаж
от 9 289 000 ₽
→
Кирпичный дом С-183 К «Арми»
3 спальн. · 2 санузл. · 3 этаж
от 9 302 000 ₽
→
Проект одноэтажного дома "Печки-лавочки" из бруса
2 спальн. · 2 этаж
от 6 572 044 ₽
→
Проект одноэтажного каркасного дома "Печки-ЛавочкиК"
4 спальн. · 2 этаж
от 6 903 697 ₽
→
Проект одноэтажного каркасного дома "Фиджо"
3 спальн. · 2 этаж
от 7 086 577 ₽
→
На сайт застройщика