Перейти к контенту
Подбор и сравнение проектов домов от застройщиков Московской области
Подборщик домов
Калькулятор сметы
Калькулятор площади
Форум
Блог
Главная
›
Каталог проектов
›
Проект дома «Черемуха» | ЭкоТех
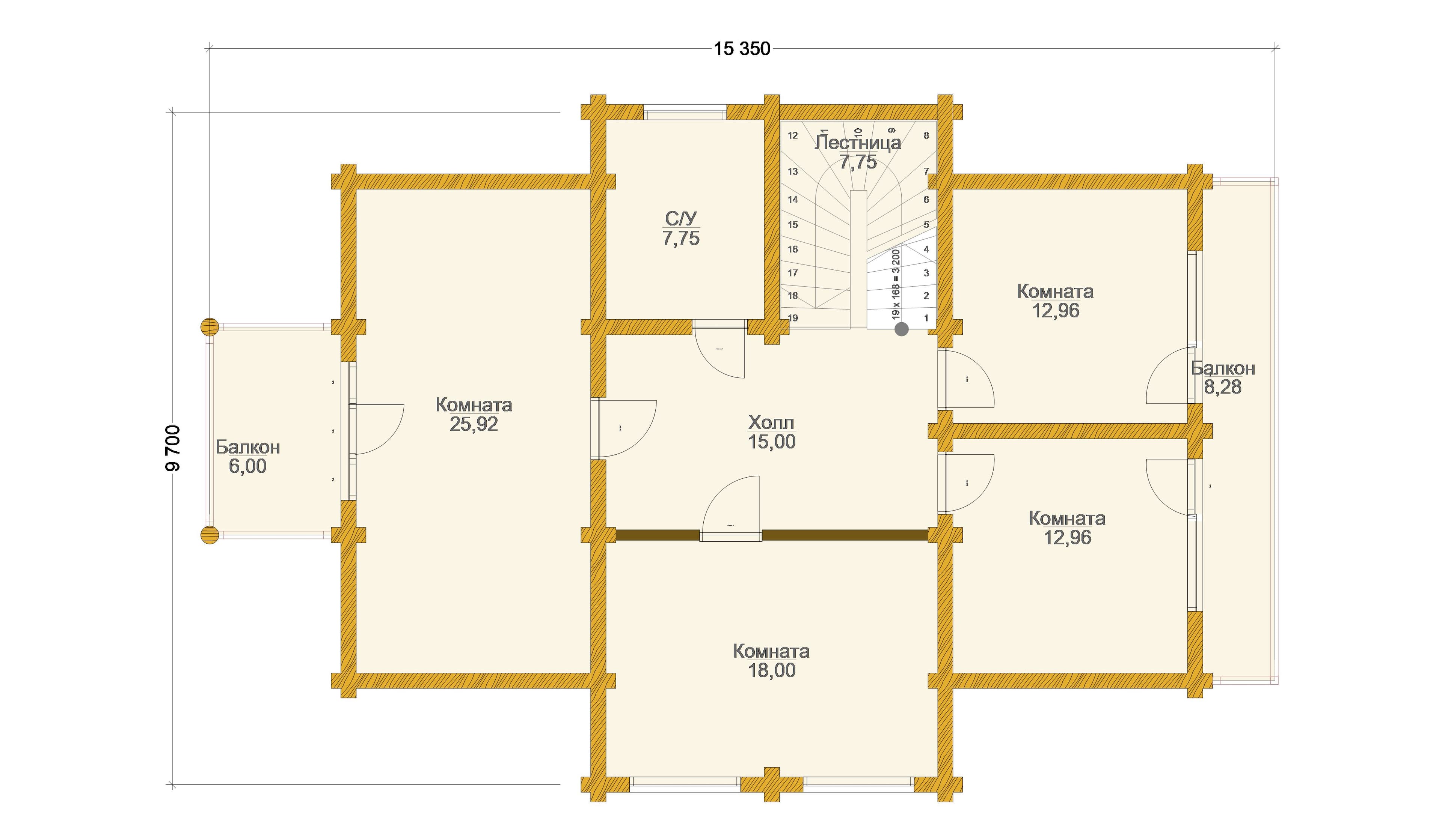
Проект дома «Черемуха» | ЭкоТех
Застройщик: Эко-Тех
248.0 м²
1 / 3
🏠
248.0 м²
🛏
5 спален
🚿
2 санузл.
📐
2 этаж
🧱
Оцилиндрованное бревно
Похожие проекты
Похожие по цене
Похожие по площади
Норд 6
5 спальн. · 3 санузл. · 2 этаж
от 5 736 000 ₽
→
Норд 6
5 спальн. · 3 санузл. · 2 этаж
от 5 736 000 ₽
→
Дом из газобетона Проект ГБ-204
3 спальн. · 2 санузл. · 1 этаж
от 5 729 000 ₽
→
АС-4
6 спальн. · 1 этаж
от 16 990 000 ₽
→
Дом по проекту «ЗС 16-17» - Золотое Сечение
4 спальн. · 3 санузл.
от 31 000 000 ₽
→
Проект дома из газоблоков 14х13 ГББ-249: цена 10314000 руб.
5 спальн. · 3 санузл. · 2 этаж
от 15 722 000 ₽
→
На сайт застройщика