Перейти к контенту
Подбор и сравнение проектов домов от застройщиков Московской области
Подборщик домов
Калькулятор сметы
Калькулятор площади
Форум
Блог
Главная
›
Каталог проектов
›
Проект дома A-109-1P
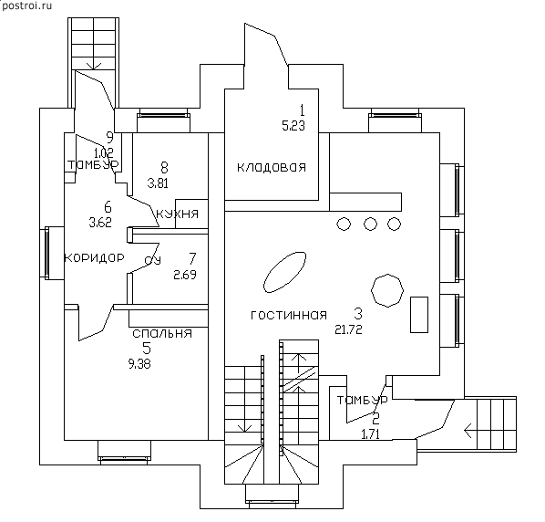
Проект дома A-109-1P
Застройщик: Юникс-Строй
265.0 м²
1 / 3
🏠
265.0 м²
📐
2 этаж
🧱
Пеноблок
Похожие проекты
Похожие по цене
Похожие по площади
Проект «Akron»
4 спальн. · 3 санузл. · 2 этаж
от 18 550 000 ₽
→
Проект дома A-265-1P
2 этаж
от 18 550 000 ₽
→
Проект дома M-265-1P
2 этаж
от 18 550 000 ₽
→
Проект одноэтажного коттеджа "Баллада" из газобетона
4 спальн. · 2 этаж
от 11 992 000 ₽
→
Дом по проекту «ЗС 398-18» - Золотое Сечение
4 спальн. · 3 санузл.
от 33 125 000 ₽
→
Современный загородный дом «Расленд»
3 спальн. · 3 санузл. · 2 этаж
от 15 900 000 ₽
→
На сайт застройщика