Перейти к контенту
Подбор и сравнение проектов домов от застройщиков Московской области
Подборщик домов
Калькулятор сметы
Калькулятор площади
Форум
Блог
Главная
›
Каталог проектов
›
Проект дома A-126-1P
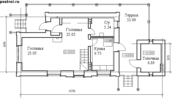
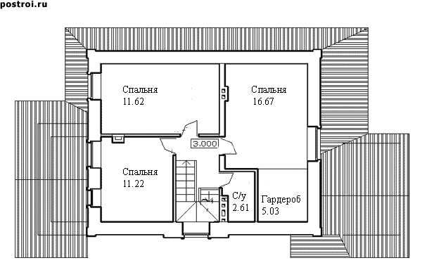
Проект дома A-126-1P
Застройщик: Юникс-Строй
127.0 м²
1 / 3
🏠
127.0 м²
📐
2 этаж
🧱
Пеноблок
Похожие проекты
Похожие по цене
Похожие по площади
Проект одноэтажного коттеджа "Кофейный" из газобетона
6 спальн. · 2 этаж
от 8 892 000 ₽
→
Дом из клееного бруса «Краснознаменск» | ЭкоТех
3 спальн. · 2 санузл. · 1 этаж
от 8 896 000 ₽
→
Проект дома AS-2301
2 этаж
от 8 883 000 ₽
→
Строительство каркасного дома 11х8 "Крона" под ключ
5 спальн. · 2 санузл. · 2 этаж
от 4 650 000 ₽
→
Строительство каркасного дома 9х9 "Валькирия" под ключ
5 спальн. · 2 санузл. · 2 этаж
от 5 040 000 ₽
→
Дом по проекту «ЗС 607-20» - Золотое Сечение
2 спальн. · 2 санузл.
от 15 875 000 ₽
→
На сайт застройщика