Перейти к контенту
Подбор и сравнение проектов домов от застройщиков Московской области
Подборщик домов
Калькулятор сметы
Калькулятор площади
Форум
Блог
Главная
›
Каталог проектов
›
Проект дома C-217-1P
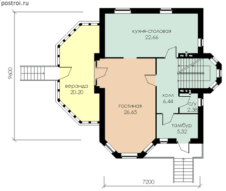
Проект дома C-217-1P
Застройщик: Юникс-Строй
221.45 м²
1 / 4
🏠
221.45 м²
📐
3 этаж
🧱
Пеноблок
Похожие проекты
Похожие по цене
Похожие по площади
Проект каркасного дома КП-3838
1 этаж
от 15 500 000 ₽
→
Проект «Harlem»
4 спальн. · 3 санузл.
от 15 500 000 ₽
→
Проект «Harlem»
4 спальн. · 3 санузл.
от 15 500 000 ₽
→
Проект W-222-1K
2 этаж
от 18 154 800 ₽
→
Проект двухэтажного дома "Ренессанс" из бруса
5 спальн. · 2 этаж
от 17 720 801 ₽
→
Проект G-221-1P
2 этаж
от 15 505 000 ₽
→
На сайт застройщика