Перейти к контенту
Подбор и сравнение проектов домов от застройщиков Московской области
Подборщик домов
Калькулятор сметы
Калькулятор площади
Форум
Блог
Главная
›
Каталог проектов
›
Проект дома C-229-1P
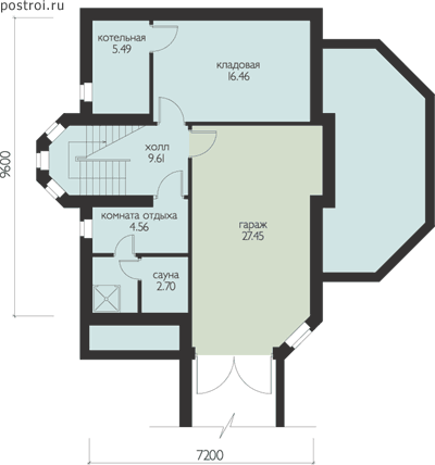
Проект дома C-229-1P
Застройщик: Юникс-Строй
273.41 м²
1 / 4
🏠
273.41 м²
📐
3 этаж
🧱
Пеноблок
Похожие проекты
Похожие по цене
Похожие по площади
Проект U-275-1P
3 этаж
от 19 140 800 ₽
→
Дом по проекту «ЗС 19-17» - Золотое Сечение
3 спальн. · 2 санузл.
от 19 125 000 ₽
→
Дом по проекту «ЗС 400-19» - Золотое Сечение
3 спальн. · 2 санузл.
от 19 125 000 ₽
→
Проект одноэтажного коттеджа "Ольве" из газобетона
4 спальн. · 2 этаж
от 10 832 000 ₽
→
Проект U-275-1P
3 этаж
от 19 140 800 ₽
→
Проект U-273-1K
2 этаж
от 22 424 540 ₽
→
На сайт застройщика