Перейти к контенту
Подбор и сравнение проектов домов от застройщиков Московской области
Подборщик домов
Калькулятор сметы
Калькулятор площади
Форум
Блог
Главная
›
Каталог проектов
›
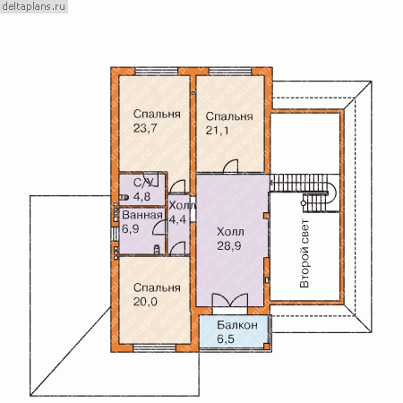
Проект дома D-313-1P
Проект дома D-313-1P
Застройщик: Юникс-Строй
311.5 м²
1 / 3
🏠
311.5 м²
📐
2 этаж
🧱
Пеноблок
Похожие проекты
Похожие по цене
Похожие по площади
Проект I-266-1K
2 этаж
от 21 807 080 ₽
→
Резиденция в стиле Шале «Торнесс»
3 спальн. · 3 санузл. · 2 этаж
от 21 792 000 ₽
→
Проект дома H-292-1P
2 этаж
от 21 822 500 ₽
→
Проект S-312-1K
2 этаж
от 25 543 000 ₽
→
Проект U-311-1K
3 этаж
от 25 538 900 ₽
→
Проект дома H-292-1P
2 этаж
от 21 822 500 ₽
→
На сайт застройщика