Перейти к контенту
Подбор и сравнение проектов домов от застройщиков Московской области
Подборщик домов
Калькулятор сметы
Калькулятор площади
Форум
Блог
Главная
›
Каталог проектов
›
Проект дома E-180-1P
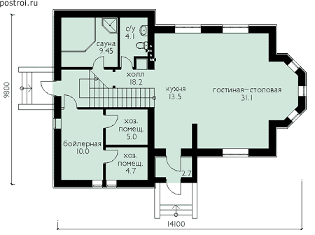
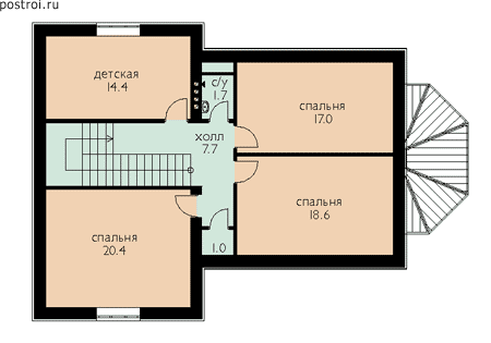
Проект дома E-180-1P
Застройщик: Юникс-Строй
179.55 м²
1 / 3
🏠
179.55 м²
📐
2 этаж
🧱
Пеноблок
Похожие проекты
Похожие по цене
Похожие по площади
Проект дома «Австрия» | ЭкоТех
3 спальн. · 2 санузл. · 2 этаж
от 12 568 000 ₽
→
Кирпичный дом С-268 К «Стриж»
4 спальн. · 3 санузл. · 4 этаж
от 12 570 000 ₽
→
Проект V-179-1P
2 этаж
от 12 563 600 ₽
→
Проект F-179-1K
2 этаж
от 14 720 640 ₽
→
Проект одноэтажного дома "Добротный" из бруса
2 спальн. · 1 этаж
от 13 200 597 ₽
→
Проект V-179-1P
2 этаж
от 12 563 600 ₽
→
На сайт застройщика