Перейти к контенту
Подбор и сравнение проектов домов от застройщиков Московской области
Подборщик домов
Калькулятор сметы
Калькулятор площади
Форум
Блог
Главная
›
Каталог проектов
›
Проект дома E-202-1P
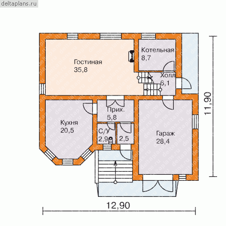
Проект дома E-202-1P
Застройщик: Юникс-Строй
202.3 м²
1 / 3
🏠
202.3 м²
📐
2 этаж
🧱
Пеноблок
Похожие проекты
Похожие по цене
Похожие по площади
Проект одноэтажного дома с террасой Flat-02-158 м² — Домострой
4 спальн. · 2 санузл. · 1 этаж
от 14 167 870 ₽
→
Проект одноэтажного дома "Фирсик" из бруса
5 спальн. · 2 этаж
от 14 168 640 ₽
→
Проект R-202-1P
2 этаж
от 14 150 500 ₽
→
Проект «First»
3 спальн. · 3 санузл. · 1 этаж
от 12 300 000 ₽
→
Одноэтажный дом «Фирст» с отдельно стоящей баней
3 спальн. · 3 санузл. · 1 этаж
от 12 138 000 ₽
→
Проект D-179-1D
2 этаж
от 30 345 000 ₽
→
На сайт застройщика