Перейти к контенту
Подбор и сравнение проектов домов от застройщиков Московской области
Подборщик домов
Калькулятор сметы
Калькулятор площади
Форум
Блог
Главная
›
Каталог проектов
›
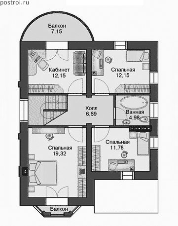
Проект дома F-149-1P
Проект дома F-149-1P
Застройщик: Юникс-Строй
151.6 м²
1 / 3
🏠
151.6 м²
📐
2 этаж
🧱
Пеноблок
Похожие проекты
Похожие по цене
Похожие по площади
Проект дома D-152-1P
2 этаж
от 10 605 000 ₽
→
Проект дома D-152-2P
2 этаж
от 10 605 000 ₽
→
Проект дома D-152-3P
2 этаж
от 10 605 000 ₽
→
Проект двухэтажного дома "Школьный вальс" из бруса
5 спальн. · 2 этаж
от 11 024 498 ₽
→
Проект дома D-152-1P
2 этаж
от 10 605 000 ₽
→
Проект дома D-152-2P
2 этаж
от 10 605 000 ₽
→
На сайт застройщика