Перейти к контенту
Подбор и сравнение проектов домов от застройщиков Московской области
Подборщик домов
Калькулятор сметы
Калькулятор площади
Форум
Блог
Главная
›
Каталог проектов
›
Проект дома H-251-1P
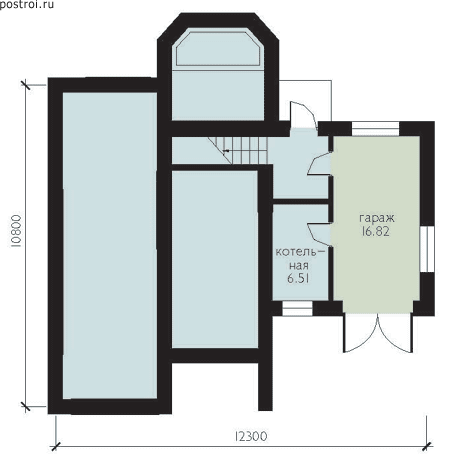
Проект дома H-251-1P
Застройщик: Юникс-Строй
250.6 м²
1 / 4
🏠
250.6 м²
📐
3 этаж
🧱
Пеноблок
Похожие проекты
Похожие по цене
Похожие по площади
Проект A-214-1K
2 этаж
от 17 539 800 ₽
→
Проект дома «Лоу»
5 спальн. · 2 этаж
от 17 545 000 ₽
→
Проект дома из керамоблоков 12х16 ТКБ-261: цена 10065000 руб.
5 спальн. · 4 санузл. · 2 этаж
от 17 548 000 ₽
→
Двухэтажный дом «Верея» | ЭкоТех
4 спальн. · 3 санузл. · 2 этаж
от 11 766 000 ₽
→
Проект одноэтажного коттеджа "Евдокимов" из газобетона
5 спальн. · 2 этаж
от 11 145 000 ₽
→
Проект одноэтажного коттеджа "Робинзон Крузо" из газобетона
4 спальн. · 2 этаж
от 10 249 000 ₽
→
На сайт застройщика