Перейти к контенту
Подбор и сравнение проектов домов от застройщиков Московской области
Подборщик домов
Калькулятор сметы
Калькулятор площади
Форум
Блог
Главная
›
Каталог проектов
›
Проект дома M-211-2P
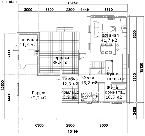
Проект дома M-211-2P
Застройщик: Юникс-Строй
210.8 м²
1 / 3
🏠
210.8 м²
📐
2 этаж
🧱
Пеноблок
Похожие проекты
Похожие по цене
Похожие по площади
Проект дома M-211-1P
2 этаж
от 14 756 000 ₽
→
Проект одноэтажного дома "Глясе с гаражом" из бруса
7 спальн. · 2 этаж
от 14 758 507 ₽
→
Проект R-180-1K
2 этаж
от 14 760 000 ₽
→
Проект дома M-211-1P
2 этаж
от 14 756 000 ₽
→
Дом из газобетонных блоков С-211 ГБ «Лето»
4 спальн. · 3 санузл. · 2 этаж
от 9 138 000 ₽
→
Дом из керамических блоков С-211 КЕ «Лето»
4 спальн. · 3 санузл. · 2 этаж
от 9 138 000 ₽
→
На сайт застройщика