Перейти к контенту
Подбор и сравнение проектов домов от застройщиков Московской области
Подборщик домов
Калькулятор сметы
Калькулятор площади
Форум
Блог
Главная
›
Каталог проектов
›
Проект дома M-412-1P
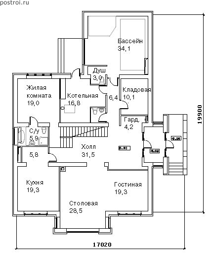
Проект дома M-412-1P
Застройщик: Юникс-Строй
411.8 м²
1 / 3
🏠
411.8 м²
📐
2 этаж
🧱
Пеноблок
Похожие проекты
Похожие по цене
Похожие по площади
Проект G-352-1K
3 этаж
от 28 823 000 ₽
→
Проект W-315-1K
3 этаж
от 28 823 000 ₽
→
Проект L-192-1D
2 этаж
от 28 815 000 ₽
→
Дом из газобетонных блоков С-412 ГБ «Волен»
4 спальн. · 3 санузл. · 4 этаж
от 17 359 000 ₽
→
Дом из керамических блоков С-412 КЕ «Волен»
4 спальн. · 3 санузл. · 4 этаж
от 17 359 000 ₽
→
Кирпичный дом С-412 К «Волен»
4 спальн. · 3 санузл. · 4 этаж
от 18 649 000 ₽
→
На сайт застройщика