Перейти к контенту
Подбор и сравнение проектов домов от застройщиков Московской области
Подборщик домов
Калькулятор сметы
Калькулятор площади
Форум
Блог
Главная
›
Каталог проектов
›
Проект дома N-358-1P
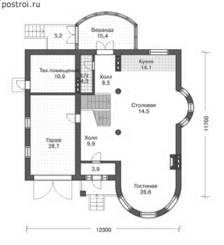
Проект дома N-358-1P
Застройщик: Юникс-Строй
357.5 м²
1 / 4
🏠
357.5 м²
📐
3 этаж
🧱
Пеноблок
Похожие проекты
Похожие по цене
Похожие по площади
Проект M-305-1K
2 этаж
от 25 014 100 ₽
→
Проект E-305-1K
3 этаж
от 25 042 800 ₽
→
Проект M-304-1K
2 этаж
от 25 002 620 ₽
→
Проект M-314-1K
3 этаж
от 29 321 560 ₽
→
Проект V-357-1K
2 этаж
от 29 305 980 ₽
→
Проект U-358-1K
2 этаж
от 29 329 760 ₽
→
На сайт застройщика