Перейти к контенту
Подбор и сравнение проектов домов от застройщиков Московской области
Подборщик домов
Калькулятор сметы
Калькулятор площади
Форум
Блог
Главная
›
Каталог проектов
›
Проект дома U-132-1P
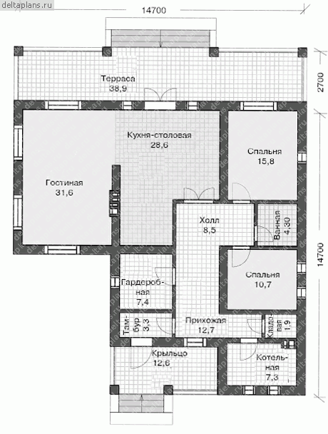
Проект дома U-132-1P
Застройщик: Юникс-Строй
183.51 м²
1 / 2
🏠
183.51 м²
📐
1 этаж
🧱
Пеноблок
Похожие проекты
Похожие по цене
Похожие по площади
Проект N-183-1P
1 этаж
от 12 845 000 ₽
→
Проект двухэтажного коттеджа "Руслана" из газобетона
4 спальн. · 2 этаж
от 12 850 000 ₽
→
Проект одноэтажного дома "Фа Гот" из бруса
4 спальн. · 2 этаж
от 12 850 709 ₽
→
Проект N-183-1P
1 этаж
от 12 845 000 ₽
→
Проект дома «Бастер»
5 спальн. · 2 этаж
от 10 842 000 ₽
→
Проект дома U-184-1P
2 этаж
от 12 852 000 ₽
→
На сайт застройщика