Перейти к контенту
Подбор и сравнение проектов домов от застройщиков Московской области
Подборщик домов
Калькулятор сметы
Калькулятор площади
Форум
Блог
Главная
›
Каталог проектов
›
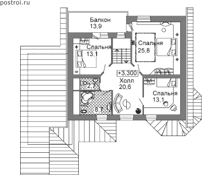
Проект дома V-221-1P
Проект дома V-221-1P
Застройщик: Юникс-Строй
221.1 м²
1 / 3
🏠
221.1 м²
📐
2 этаж
🧱
Пеноблок
Похожие проекты
Похожие по цене
Похожие по площади
Дом в стиле Хай-Тек с гаражом на 2 машины «Россберг»
3 спальн. · 3 санузл. · 3 этаж
от 15 480 000 ₽
→
Проект N-188-1K
2 этаж
от 15 481 600 ₽
→
Проект M-189-1K
2 этаж
от 15 464 380 ₽
→
Дом по проекту «ЗС 7-17» - Золотое Сечение
3 спальн. · 2 санузл.
от 27 625 000 ₽
→
Проект дома 45-10
2 этаж
от 9 038 000 ₽
→
Проект W-221-1K
2 этаж
от 18 138 400 ₽
→
На сайт застройщика