Перейти к контенту
Подбор и сравнение проектов домов от застройщиков Московской области
Подборщик домов
Калькулятор сметы
Калькулятор площади
Форум
Блог
Главная
›
Каталог проектов
›
Проект дома W-1027-1P
Проект дома W-1027-1P
Застройщик: Юникс-Строй
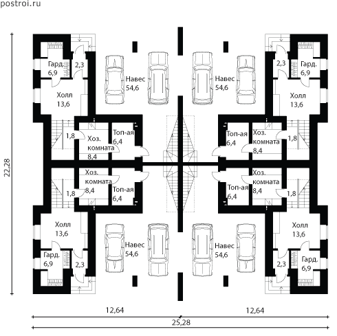
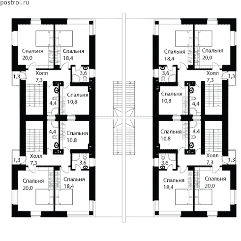
1026.8 м²
1 / 4
🏠
1026.8 м²
📐
3 этаж
🧱
Пеноблок
Похожие проекты
Похожие по цене
Похожие по площади
Проект «Island»
5 спальн. · 7 санузл.
от 71 300 000 ₽
→
Проект «Vancouver»
от 71 050 000 ₽
→
Проект U-864-1K
3 этаж
от 70 839 800 ₽
→
Проект «Philadelphia»
5 спальн. · 6 санузл.
от 51 250 000 ₽
→
Проект «Philadelphia»
5 спальн. · 6 санузл.
от 51 250 000 ₽
→
Проект «Philadelphia»
5 спальн. · 6 санузл. · 2 этаж
от 51 250 000 ₽
→
На сайт застройщика