Перейти к контенту
Подбор и сравнение проектов домов от застройщиков Московской области
Подборщик домов
Калькулятор сметы
Калькулятор площади
Форум
Блог
Главная
›
Каталог проектов
›
Проект дома W-145-1P
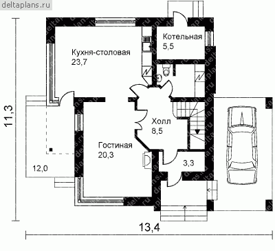
Проект дома W-145-1P
Застройщик: Юникс-Строй
144.66 м²
1 / 3
🏠
144.66 м²
📐
2 этаж
🧱
Пеноблок
Похожие проекты
Похожие по цене
Похожие по площади
Проект дома из газоблоков 11х10 ГББ-143: цена 73640000 руб.
5 спальн. · 2 санузл. · 2 этаж
от 10 126 000 ₽
→
Проект A-124-1K
2 этаж
от 10 127 000 ₽
→
Кирпичный дом С-207 К «Норди»
3 спальн. · 2 санузл. · 3 этаж
от 10 123 000 ₽
→
Варяг 5
5 спальн. · 3 санузл. · 2 этаж
от 5 106 000 ₽
→
Варяг 5
5 спальн. · 3 санузл. · 2 этаж
от 5 106 000 ₽
→
Проект V-145-1P
2 этаж
от 10 121 300 ₽
→
На сайт застройщика