Перейти к контенту
Подбор и сравнение проектов домов от застройщиков Московской области
Подборщик домов
Калькулятор сметы
Калькулятор площади
Форум
Блог
Главная
›
Каталог проектов
›
Проект A-294-1D
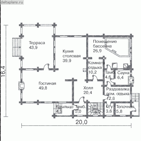
Проект A-294-1D
Застройщик: Юникс-Строй
294.0 м²
1 / 3
🏠
294.0 м²
📐
2 этаж
🧱
Дерево
Похожие проекты
Похожие по цене
Похожие по площади
Проект D-294-1D
3 этаж
от 44 025 000 ₽
→
Проект D-294-2D
3 этаж
от 44 025 000 ₽
→
Дом в стиле Райта «HIGHLAND» с бассейном на улице
5 спальн. · 4 санузл. · 2 этаж
от 44 010 000 ₽
→
Дом по проекту «ЗС 276-18» - Золотое Сечение
4 спальн. · 5 санузл.
от 36 750 000 ₽
→
Проект К-17 12 на 12, площадью 294 за 9 774 000 руб
4 спальн. · 2 этаж
от 9 774 000 ₽
→
Проект К-17 12 на 12, площадью 294 за 9 774 000 руб
4 спальн. · 2 этаж
от 8 232 000 ₽
→
На сайт застройщика