Перейти к контенту
Подбор и сравнение проектов домов от застройщиков Московской области
Подборщик домов
Калькулятор сметы
Калькулятор площади
Форум
Блог
Главная
›
Каталог проектов
›
Проект A-295-1K
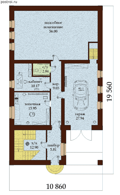
Проект A-295-1K
Застройщик: Юникс-Строй
295.0 м²
1 / 3
🏠
295.0 м²
📐
2 этаж
🧱
Кирпич
Похожие проекты
Похожие по цене
Похожие по площади
Проект G-295-1K
2 этаж
от 24 182 620 ₽
→
Проект дома V-345-1P
2 этаж
от 24 178 000 ₽
→
Проект W-295-1K
3 этаж
от 24 173 600 ₽
→
ПД - 295 - Строительство домов из Каркаса, СИП, Бруса под ключ
4 спальн. · 3 санузл. · 2 этаж
от 6 320 000 ₽
→
Проект G-295-1K
2 этаж
от 24 182 620 ₽
→
Проект V-294-1P
3 этаж
от 20 643 000 ₽
→
На сайт застройщика