Перейти к контенту
Подбор и сравнение проектов домов от застройщиков Московской области
Подборщик домов
Калькулятор сметы
Калькулятор площади
Форум
Блог
Главная
›
Каталог проектов
›
Проект A-319-1P
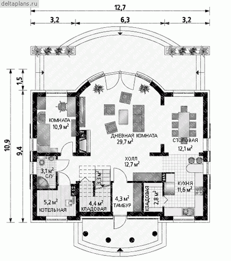
Проект A-319-1P
Застройщик: Юникс-Строй
185.9 м²
1 / 3
🏠
185.9 м²
📐
2 этаж
🧱
Пеноблок
Похожие проекты
Похожие по цене
Похожие по площади
Проект U-185-1P
3 этаж
от 13 008 800 ₽
→
Проект одноэтажного каркасного дома "Лучезар"
4 спальн. · 2 этаж
от 13 017 688 ₽
→
Проект одноэтажного коттеджа "Осло" из газобетона
5 спальн. · 2 этаж
от 13 008 000 ₽
→
Проект U-185-1K
3 этаж
от 15 238 880 ₽
→
Проект U-185-1P
3 этаж
от 13 008 800 ₽
→
Проект дома «Хоукинс»
3 спальн. · 1 этаж
от 15 646 000 ₽
→
На сайт застройщика