Перейти к контенту
Подбор и сравнение проектов домов от застройщиков Московской области
Подборщик домов
Калькулятор сметы
Калькулятор площади
Форум
Блог
Главная
›
Каталог проектов
›
Проект A-375-1K
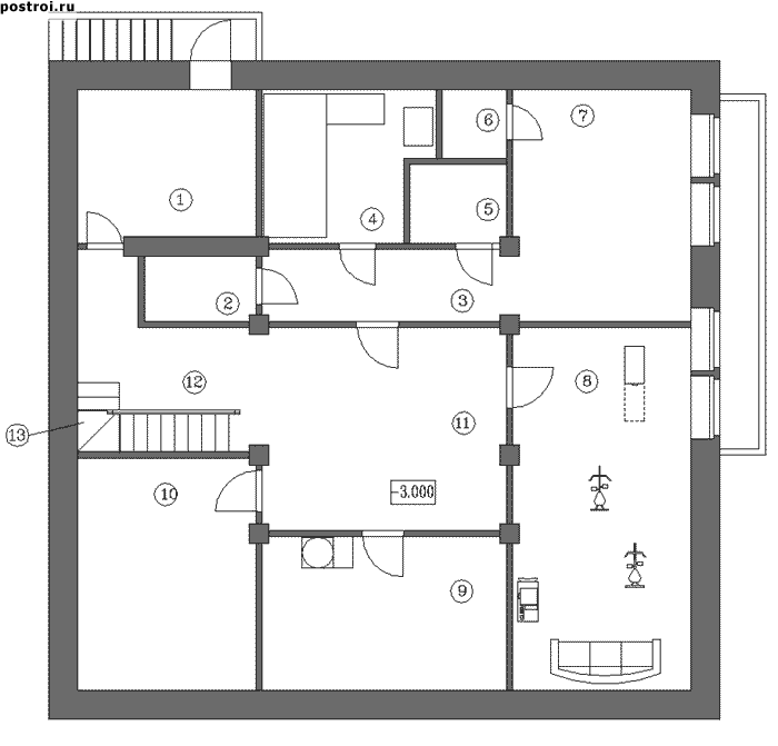
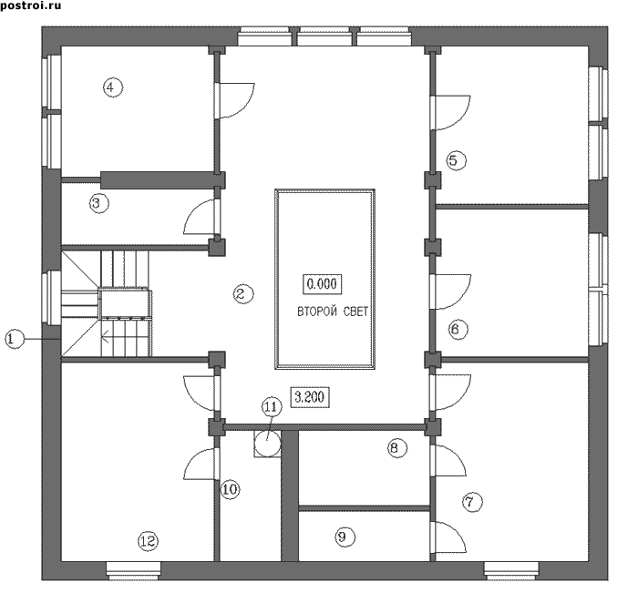
Проект A-375-1K
Застройщик: Юникс-Строй
375.0 м²
1 / 4
🏠
375.0 м²
📐
3 этаж
🧱
Кирпич
Похожие проекты
Похожие по цене
Похожие по площади
Проект U-439-1P
3 этаж
от 30 752 400 ₽
→
Проект M-375-1K
3 этаж
от 30 733 600 ₽
→
Проект U-376-1K
3 этаж
от 30 836 920 ₽
→
Дом Минаево из газобетона: заказать в Москве по низкой цене
2 этаж
от 19 990 000 ₽
→
Дом Минаево из кирпича: заказать в Москве по низкой цене
2 этаж
от 19 990 000 ₽
→
Дом из бревна ручной рубки «Ньютон» | ЭкоТех
4 спальн. · 2 санузл. · 2 этаж
от 17 323 270 ₽
→
На сайт застройщика