Перейти к контенту
Подбор и сравнение проектов домов от застройщиков Московской области
Подборщик домов
Калькулятор сметы
Калькулятор площади
Форум
Блог
Главная
›
Каталог проектов
›
Проект B-173-1P
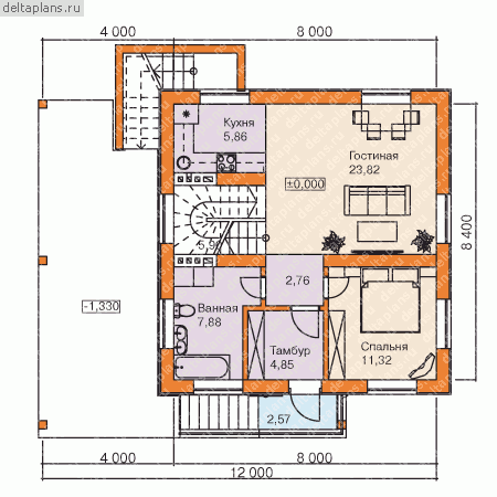
Проект B-173-1P
Застройщик: Юникс-Строй
173.92 м²
1 / 4
🏠
173.92 м²
📐
3 этаж
🧱
Пеноблок
Похожие проекты
Похожие по цене
Похожие по площади
Проект M-173-1P
2 этаж
от 12 173 000 ₽
→
Дом из газобетонных блоков С-279 ГБ «Монтана»
3 спальн. · 3 санузл. · 3 этаж
от 12 176 000 ₽
→
Дом из керамических блоков С-279 КЕ «Монтана»
3 спальн. · 3 санузл. · 3 этаж
от 12 176 000 ₽
→
Проект M-173-1P
2 этаж
от 12 173 000 ₽
→
Каркасный дом «Ульяновка
от 14 130 000 ₽
→
Дом по проекту «Бранденбург» - Золотое Сечение
2 спальн. · 3 санузл.
от 21 750 000 ₽
→
На сайт застройщика