Перейти к контенту
Подбор и сравнение проектов домов от застройщиков Московской области
Подборщик домов
Калькулятор сметы
Калькулятор площади
Форум
Блог
Главная
›
Каталог проектов
›
Проект C-152-1D
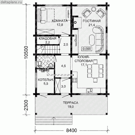
Проект C-152-1D
Застройщик: Юникс-Строй
152.2 м²
1 / 3
🏠
152.2 м²
🚿
2 санузл.
📐
2 этаж
🧱
Дерево
Похожие проекты
Похожие по цене
Похожие по площади
Проект U-278-1K
2 этаж
от 22 828 800 ₽
→
Проект G-153-1D
2 санузл. · 2 этаж
от 22 845 000 ₽
→
Проект W-279-1K
2 этаж
от 22 853 400 ₽
→
Дома из керамических блоков Вилла L под ключ
3 спальн. · 2 санузл. · 2 этаж
от 9 759 800 ₽
→
Дома из керамических блоков Тетрис L под ключ
4 спальн. · 2 санузл. · 2 этаж
от 9 626 600 ₽
→
Проекты домов из газобетона Вилла L под ключ
3 спальн. · 2 санузл. · 2 этаж
от 8 458 000 ₽
→
На сайт застройщика