Перейти к контенту
Подбор и сравнение проектов домов от застройщиков Московской области
Подборщик домов
Калькулятор сметы
Калькулятор площади
Форум
Блог
Главная
›
Каталог проектов
›
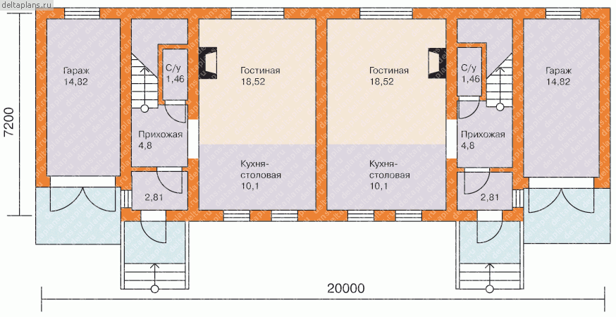
Проект C-190-1P
Проект C-190-1P
Застройщик: Юникс-Строй
190.6 м²
1 / 3
🏠
190.6 м²
📐
2 этаж
🧱
Пеноблок
Похожие проекты
Похожие по цене
Похожие по площади
Проект одноэтажного коттеджа "Оттава" из газобетона
3 спальн. · 2 этаж
от 13 342 000 ₽
→
Проект дома «Борисово» | ЭкоТех
3 спальн. · 2 санузл. · 1 этаж
от 13 342 000 ₽
→
Проект J-163-1K
2 этаж
от 13 341 400 ₽
→
Проект одноэтажного коттеджа "Северная корона" из газобетона
3 спальн. · 1 этаж
от 16 034 000 ₽
→
Каркасный дом «Лотос» | ЭкоТех
4 спальн. · 3 санузл. · 2 этаж
от 8 190 000 ₽
→
Проект C-191-1P
2 этаж
от 13 346 900 ₽
→
На сайт застройщика