Перейти к контенту
Подбор и сравнение проектов домов от застройщиков Московской области
Подборщик домов
Калькулятор сметы
Калькулятор площади
Форум
Блог
Главная
›
Каталог проектов
›
Проект D-130-1K
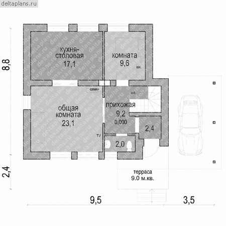
Проект D-130-1K
Застройщик: Юникс-Строй
130.0 м²
1 / 3
🏠
130.0 м²
📐
2 этаж
🧱
Кирпич
Похожие проекты
Похожие по цене
Похожие по площади
Проект одноэтажного каркасного дома "Добряк"
3 спальн. · 2 этаж
от 10 661 869 ₽
→
Проект дома из газоблоков 17х11 ГББ-145: цена 8156000 руб.
3 спальн. · 1 санузл. · 1 этаж
от 10 658 000 ₽
→
Проект дома A-152-1P
2 этаж
от 10 668 000 ₽
→
Проект дома «Ирвинг»
3 спальн. · 1 этаж
от 11 968 800 ₽
→
Проект одноэтажного дома "Ольга" из бруса
2 спальн. · 2 этаж
от 10 687 305 ₽
→
Проект одноэтажного каркасного дома "Княжич ТН1"
2 этаж
от 9 839 214 ₽
→
На сайт застройщика