Перейти к контенту
Подбор и сравнение проектов домов от застройщиков Московской области
Подборщик домов
Калькулятор сметы
Калькулятор площади
Форум
Блог
Главная
›
Каталог проектов
›
Проект D-164-1P
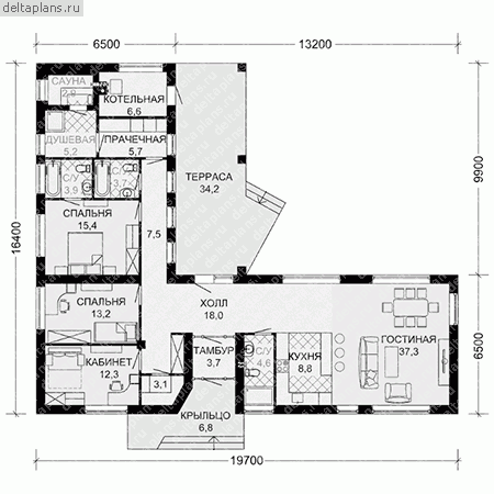
Проект D-164-1P
Застройщик: Юникс-Строй
163.6 м²
1 / 2
🏠
163.6 м²
📐
1 этаж
🧱
Пеноблок
Похожие проекты
Похожие по цене
Похожие по площади
Проект R-165-1P
2 этаж
от 11 451 300 ₽
→
Проект U-164-1P
2 этаж
от 11 451 300 ₽
→
Проект одноэтажного коттеджа "Аль Таяр - 2" из бруса
4 спальн. · 2 этаж
от 11 449 974 ₽
→
Дом из газобетона "Барн-Стоун"
3 спальн. · 2 санузл. · 1 этаж
от 7 580 000 ₽
→
Проект R-165-1P
2 этаж
от 11 451 300 ₽
→
Проект U-164-1P
2 этаж
от 11 451 300 ₽
→
На сайт застройщика