Перейти к контенту
Подбор и сравнение проектов домов от застройщиков Московской области
Подборщик домов
Калькулятор сметы
Калькулятор площади
Форум
Блог
Главная
›
Каталог проектов
›
Проект D-178-1D
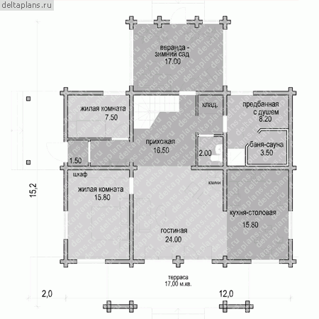
Проект D-178-1D
Застройщик: Юникс-Строй
178.0 м²
1 / 3
🏠
178.0 м²
📐
2 этаж
🧱
Дерево
Похожие проекты
Похожие по цене
Похожие по площади
Коттедж с комбинированным фасадом "Бильбао"
5 спальн. · 3 санузл. · 2 этаж
от 26 700 000 ₽
→
Проект J-178-1D
2 этаж
от 26 700 000 ₽
→
Проект U-381-1P
1 этаж
от 26 679 100 ₽
→
Дом по проекту «ЗС 249-25» - Золотое Сечение
4 спальн. · 3 санузл.
от 22 250 000 ₽
→
Дом по проекту «ЗС 557-22» - Золотое Сечение
3 спальн. · 2 санузл.
от 22 250 000 ₽
→
Проект К-127 9 на 10, площадью 178 за 5 953 500 руб
4 спальн. · 2 этаж
от 5 953 500 ₽
→
На сайт застройщика