Перейти к контенту
Подбор и сравнение проектов домов от застройщиков Московской области
Подборщик домов
Калькулятор сметы
Калькулятор площади
Форум
Блог
Главная
›
Каталог проектов
›
Проект D-188-1P
Проект D-188-1P
Застройщик: Юникс-Строй
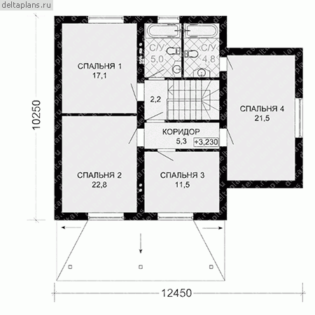
188.3 м²
1 / 3
🏠
188.3 м²
📐
2 этаж
🧱
Пеноблок
Похожие проекты
Похожие по цене
Похожие по площади
Каркасный дом «Приморск
от 13 185 000 ₽
→
Проект дома из газоблоков 12х13 ГББ-176: цена 8726000 руб.
6 спальн. · 4 санузл. · 2 этаж
от 13 186 000 ₽
→
Проект дома AS-2183
3 этаж
от 13 190 250 ₽
→
Боярин 3
5 спальн. · 2 санузл. · 2 этаж
от 6 899 000 ₽
→
Боярин 3
5 спальн. · 2 санузл. · 2 этаж
от 6 899 000 ₽
→
Проект дома «Картер»
5 спальн. · 2 этаж
от 9 948 344 ₽
→
На сайт застройщика