Перейти к контенту
Подбор и сравнение проектов домов от застройщиков Московской области
Подборщик домов
Калькулятор сметы
Калькулятор площади
Форум
Блог
Главная
›
Каталог проектов
›
Проект D-216-1D
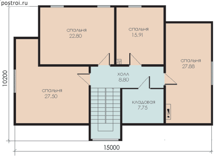
Проект D-216-1D
Застройщик: Юникс-Строй
215.52 м²
1 / 3
🏠
215.52 м²
📐
2 этаж
🧱
Дерево
Похожие проекты
Похожие по цене
Похожие по площади
Проект M-215-1D
3 этаж
от 32 352 000 ₽
→
Дом по проекту «ЗС 706-23» - Золотое Сечение
4 спальн. · 2 санузл.
от 32 375 000 ₽
→
Дом с бассейном на улице «Элмонт»
4 спальн. · 4 санузл. · 2 этаж
от 32 376 000 ₽
→
Проект U-216-1P
3 этаж
от 15 096 900 ₽
→
Проект M-215-1D
3 этаж
от 32 352 000 ₽
→
Проект U-215-1P
2 этаж
от 15 097 600 ₽
→
На сайт застройщика