Перейти к контенту
Подбор и сравнение проектов домов от застройщиков Московской области
Подборщик домов
Калькулятор сметы
Калькулятор площади
Форум
Блог
Главная
›
Каталог проектов
›
Проект D-219-1P
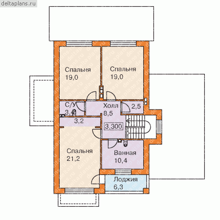
Проект D-219-1P
Застройщик: Юникс-Строй
218.9 м²
1 / 3
🏠
218.9 м²
📐
2 этаж
🧱
Пеноблок
Похожие проекты
Похожие по цене
Похожие по площади
Проект U-218-1P
3 этаж
от 15 320 900 ₽
→
Двухэтажный дом «Хардин» с фасадом из клинкерного кирпича
4 спальн. · 3 санузл. · 2 этаж
от 15 318 000 ₽
→
Проект двухэтажного дома "Октав-2" из бруса
4 спальн. · 2 этаж
от 15 317 844 ₽
→
Проект одноэтажного дома "Гармония" из бруса
3 спальн. · 2 этаж
от 15 761 512 ₽
→
Проект U-218-1P
3 этаж
от 15 320 900 ₽
→
Проект дома «Вонт»
4 спальн. · 2 этаж
от 10 386 000 ₽
→
На сайт застройщика