Перейти к контенту
Подбор и сравнение проектов домов от застройщиков Московской области
Подборщик домов
Калькулятор сметы
Калькулятор площади
Форум
Блог
Главная
›
Каталог проектов
›
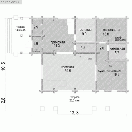
Проект D-230-1D
Проект D-230-1D
Застройщик: Юникс-Строй
230.2 м²
1 / 3
🏠
230.2 м²
📐
2 этаж
🧱
Дерево
Похожие проекты
Похожие по цене
Похожие по площади
Дом по проекту «ЗС 901-21» - Золотое Сечение
4 спальн. · 4 санузл.
от 34 500 000 ₽
→
Проект U-420-1K
3 этаж
от 34 407 200 ₽
→
Проект A-229-1D
2 этаж
от 34 399 500 ₽
→
Проект дома «Марони»
4 спальн. · 2 этаж
от 10 912 000 ₽
→
Проект U-230-1K
2 этаж
от 18 886 240 ₽
→
Проект двухэтажного дома "Октав-2" из бруса
4 спальн. · 2 этаж
от 15 317 844 ₽
→
На сайт застройщика