Перейти к контенту
Подбор и сравнение проектов домов от застройщиков Московской области
Подборщик домов
Калькулятор сметы
Калькулятор площади
Форум
Блог
Главная
›
Каталог проектов
›
Проект D-254-1K
Проект D-254-1K
Застройщик: Юникс-Строй
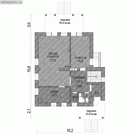
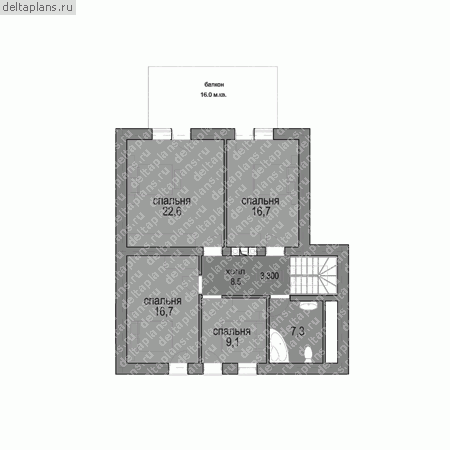
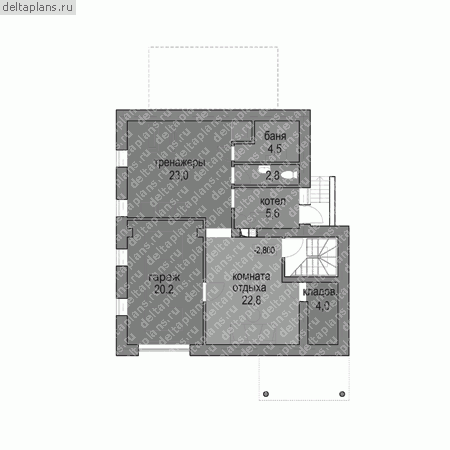
254.4 м²
1 / 4
🏠
254.4 м²
📐
3 этаж
🧱
Кирпич
Похожие проекты
Похожие по цене
Похожие по площади
Резиденция в современном стиле «Асорда»
2 спальн. · 3 санузл. · 2 этаж
от 20 868 000 ₽
→
Проект L-252-1K
2 этаж
от 20 853 420 ₽
→
Проект W-254-1K
2 этаж
от 20 852 600 ₽
→
Проект одноэтажного коттеджа "Баян" из газобетона
3 спальн. · 1 этаж
от 19 421 000 ₽
→
Проект D-254-1P
3 этаж
от 17 808 000 ₽
→
Проект дома F-254-1P
2 этаж
от 17 808 000 ₽
→
На сайт застройщика