Перейти к контенту
Подбор и сравнение проектов домов от застройщиков Московской области
Подборщик домов
Калькулятор сметы
Калькулятор площади
Форум
Блог
Главная
›
Каталог проектов
›
Проект D-266-1K
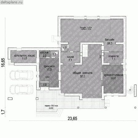
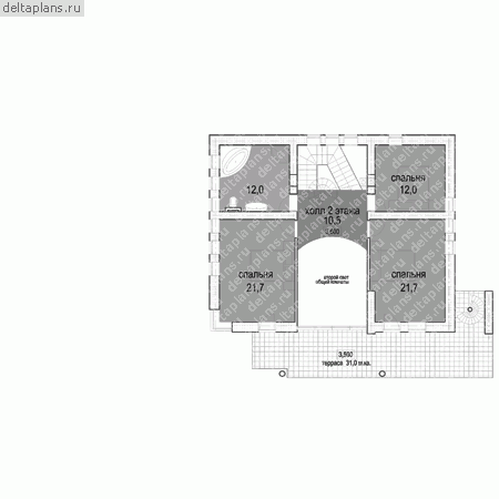
Проект D-266-1K
Застройщик: Юникс-Строй
266.3 м²
1 / 3
🏠
266.3 м²
📐
2 этаж
🧱
Кирпич
Похожие проекты
Похожие по цене
Похожие по площади
Проект дома C-312-1P
3 этаж
от 21 830 900 ₽
→
Проект «Allen»
4 спальн. · 3 санузл. · 2 этаж
от 21 850 000 ₽
→
Проект дома H-292-1P
2 этаж
от 21 822 500 ₽
→
Проект К-194 12 на 11, площадью 266 за 8 865 000 руб
4 спальн. · 2 этаж
от 8 865 000 ₽
→
Проект К-194 12 на 11, площадью 266 за 8 865 000 руб
4 спальн. · 2 этаж
от 7 448 000 ₽
→
Проект U-266-1K
2 этаж
от 21 861 200 ₽
→
На сайт застройщика