Перейти к контенту
Подбор и сравнение проектов домов от застройщиков Московской области
Подборщик домов
Калькулятор сметы
Калькулятор площади
Форум
Блог
Главная
›
Каталог проектов
›
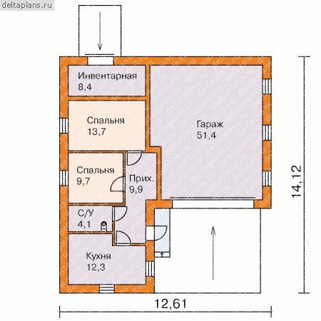
Проект E-110-1K
Проект E-110-1K
Застройщик: Юникс-Строй
109.5 м²
1 / 2
🏠
109.5 м²
📐
1 этаж
🧱
Кирпич
Похожие проекты
Похожие по цене
Похожие по площади
Дом каркасный "Реймонд-Микс"
2 спальн. · 2 санузл. · 2 этаж
от 8 980 000 ₽
→
Проект одноэтажного каркасного дома "Пелагея"
4 спальн. · 2 этаж
от 8 977 716 ₽
→
Проект одноэтажного каркасного дома "Датчанин"
4 спальн. · 2 этаж
от 8 977 093 ₽
→
Альфа 3
3 спальн. · 2 санузл. · 1 этаж
от 4 879 801 ₽
→
Проект O-108-1K
2 этаж
от 8 970 800 ₽
→
Проект дома C-110-1P
3 этаж
от 7 672 000 ₽
→
На сайт застройщика