Перейти к контенту
Подбор и сравнение проектов домов от застройщиков Московской области
Подборщик домов
Калькулятор сметы
Калькулятор площади
Форум
Блог
Главная
›
Каталог проектов
›
Проект E-129-2P
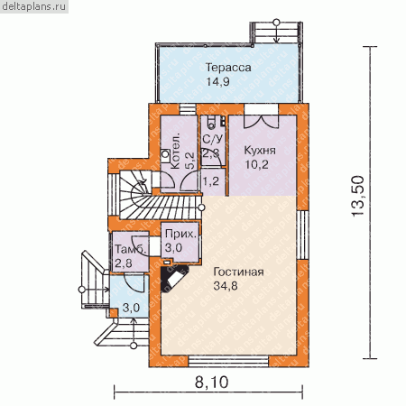
Проект E-129-2P
Застройщик: Юникс-Строй
128.9 м²
1 / 3
🏠
128.9 м²
📐
2 этаж
🧱
Пеноблок
Похожие проекты
Похожие по цене
Похожие по площади
Проект двухэтажного каркасного дома Тетрис XXXL под ключ от компании БАКО
4 спальн. · 2 санузл. · 2 этаж
от 9 022 400 ₽
→
Проект одноэтажного дома "Синица" из бруса
3 спальн. · 2 этаж
от 9 022 025 ₽
→
Проект дома «Томилино» | ЭкоТех
3 спальн. · 2 санузл. · 2 этаж
от 9 024 000 ₽
→
Проект двухэтажного каркасного дома "Европа"
4 спальн. · 2 этаж
от 9 767 007 ₽
→
Канадец 14
4 спальн. · 2 санузл. · 2 этаж
от 6 919 800 ₽
→
Дом по проекту «ЗС 14-16» - Золотое Сечение
2 спальн. · 3 санузл.
от 16 125 000 ₽
→
На сайт застройщика