Перейти к контенту
Подбор и сравнение проектов домов от застройщиков Московской области
Подборщик домов
Калькулятор сметы
Калькулятор площади
Форум
Блог
Главная
›
Каталог проектов
›
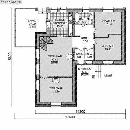
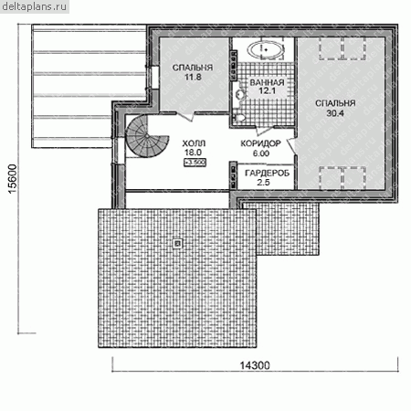
Проект E-211-1K
Проект E-211-1K
Застройщик: Юникс-Строй
211.3 м²
1 / 3
🏠
211.3 м²
📐
2 этаж
🧱
Кирпич
Похожие проекты
Похожие по цене
Похожие по площади
Проект V-247-1P
3 этаж
от 17 324 300 ₽
→
Дом из бревна ручной рубки «Ньютон» | ЭкоТех
4 спальн. · 2 санузл. · 2 этаж
от 17 323 270 ₽
→
Проект G-211-1K
2 этаж
от 17 334 800 ₽
→
Дом из газобетонных блоков С-212 ГБ «Белл»
4 спальн. · 3 санузл. · 4 этаж
от 9 026 000 ₽
→
Дом из керамических блоков С-212 КЕ «Белл»
4 спальн. · 3 санузл. · 4 этаж
от 9 026 000 ₽
→
Каркасный дом С-212 КР «Белл»
4 спальн. · 3 санузл. · 4 этаж
от 7 347 000 ₽
→
На сайт застройщика