Перейти к контенту
Подбор и сравнение проектов домов от застройщиков Московской области
Подборщик домов
Калькулятор сметы
Калькулятор площади
Форум
Блог
Главная
›
Каталог проектов
›
Проект E-218-1K
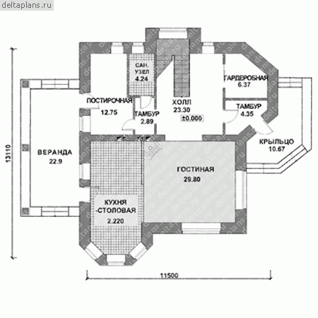
Проект E-218-1K
Застройщик: Юникс-Строй
218.53 м²
1 / 3
🏠
218.53 м²
📐
2 этаж
🧱
Кирпич
Похожие проекты
Похожие по цене
Похожие по площади
Проект N-218-1K
2 этаж
от 17 917 000 ₽
→
Проект дома F-257-1P
3 этаж
от 17 924 900 ₽
→
Проект двухэтажного дома "Авиньон" из бруса
5 спальн. · 2 этаж
от 17 926 386 ₽
→
Проект дома AS-1119
2 этаж
от 8 936 650 ₽
→
Проект N-218-1K
2 этаж
от 17 917 000 ₽
→
Проект R-218-1P
2 этаж
от 15 299 900 ₽
→
На сайт застройщика