Перейти к контенту
Подбор и сравнение проектов домов от застройщиков Московской области
Подборщик домов
Калькулятор сметы
Калькулятор площади
Форум
Блог
Главная
›
Каталог проектов
›
Проект E-231-1P
Проект E-231-1P
Застройщик: Юникс-Строй
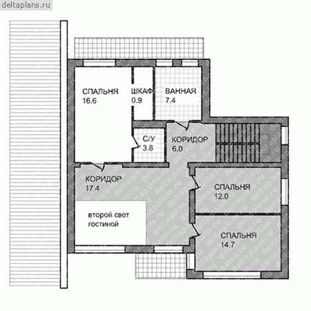
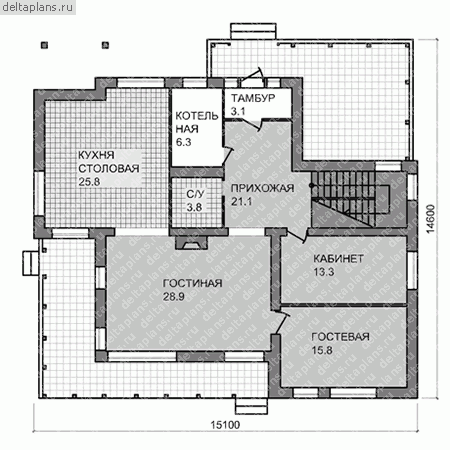
231.4 м²
1 / 3
🏠
231.4 м²
📐
2 этаж
🧱
Пеноблок
Похожие проекты
Похожие по цене
Похожие по площади
Проект V-231-1P
2 этаж
от 16 198 000 ₽
→
Проект U-231-1P
2 этаж
от 16 190 300 ₽
→
Проект N-198-1K
3 этаж
от 16 211 400 ₽
→
Проект G-231-1D
2 этаж
от 34 710 000 ₽
→
Проект V-231-1P
2 этаж
от 16 198 000 ₽
→
Каркасный дом 12x13 Проект "Гелиотроп"
1 санузл. · 2 этаж
от 3 912 000 ₽
→
На сайт застройщика