Перейти к контенту
Подбор и сравнение проектов домов от застройщиков Московской области
Подборщик домов
Калькулятор сметы
Калькулятор площади
Форум
Блог
Главная
›
Каталог проектов
›
Проект E-255-1K
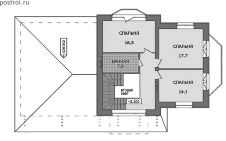
Проект E-255-1K
Застройщик: Юникс-Строй
255.1 м²
1 / 4
🏠
255.1 м²
📐
3 этаж
🧱
Кирпич
Похожие проекты
Похожие по цене
Похожие по площади
Проект U-139-1D
2 этаж
от 20 922 000 ₽
→
Проект A-299-1P
2 этаж
от 20 923 000 ₽
→
Проект G-139-1D
3 санузл. · 2 этаж
от 20 910 000 ₽
→
Проект дома W-257-1P
3 этаж
от 17 857 000 ₽
→
Проект двухэтажного коттеджа "Звенигород" из газобетона
5 спальн. · 2 этаж
от 11 331 000 ₽
→
Вилла в стиле американская классика «VIRLAD»
3 спальн. · 3 санузл. · 1 этаж
от 15 312 000 ₽
→
На сайт застройщика