Перейти к контенту
Подбор и сравнение проектов домов от застройщиков Московской области
Подборщик домов
Калькулятор сметы
Калькулятор площади
Форум
Блог
Главная
›
Каталог проектов
›
Проект E-257-1P
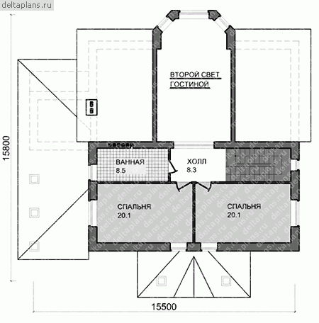
Проект E-257-1P
Застройщик: Юникс-Строй
257.6 м²
1 / 4
🏠
257.6 м²
📐
3 этаж
🧱
Пеноблок
Похожие проекты
Похожие по цене
Похожие по площади
Проект U-120-1D
2 этаж
от 18 031 500 ₽
→
Проект T-257-1P
3 этаж
от 18 045 300 ₽
→
Проект V-220-1K
2 этаж
от 18 050 660 ₽
→
Проект особняка барнхаус Котово от компании БАКО
4 спальн. · 3 санузл. · 2 этаж
от 23 333 100 ₽
→
Проект T-257-1P
3 этаж
от 18 045 300 ₽
→
Проект N-257-1P
2 этаж
от 18 053 000 ₽
→
На сайт застройщика