Перейти к контенту
Подбор и сравнение проектов домов от застройщиков Московской области
Подборщик домов
Калькулятор сметы
Калькулятор площади
Форум
Блог
Главная
›
Каталог проектов
›
Проект E-291-1K
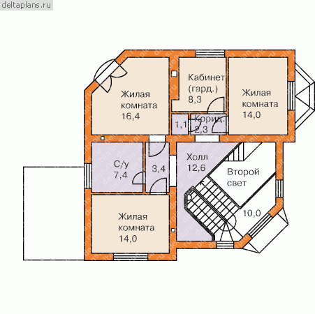
Проект E-291-1K
Застройщик: Юникс-Строй
290.0 м²
1 / 4
🏠
290.0 м²
📐
3 этаж
🧱
Кирпич
Похожие проекты
Похожие по цене
Похожие по площади
Проект U-289-1K
2 этаж
от 23 778 360 ₽
→
Проект E-290-1K
2 этаж
от 23 804 600 ₽
→
Проект G-290-1K
3 этаж
от 23 755 400 ₽
→
Дом по проекту «ЗС 786-21» - Золотое Сечение
3 спальн. · 3 санузл.
от 36 250 000 ₽
→
Проект К-136 12 на 12, площадью 290 за 9 666 000 руб
4 спальн. · 2 этаж
от 9 666 000 ₽
→
Проект К-136 12 на 12, площадью 290 за 9 666 000 руб
4 спальн. · 2 этаж
от 8 120 000 ₽
→
На сайт застройщика