Перейти к контенту
Подбор и сравнение проектов домов от застройщиков Московской области
Подборщик домов
Калькулятор сметы
Калькулятор площади
Форум
Блог
Главная
›
Каталог проектов
›
Проект E-318-1K
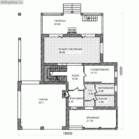
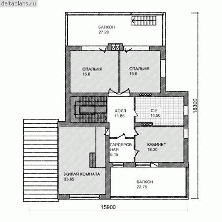
Проект E-318-1K
Застройщик: Юникс-Строй
318.8 м²
1 / 3
🏠
318.8 м²
📐
2 этаж
🧱
Кирпич
Похожие проекты
Похожие по цене
Похожие по площади
Проект L-319-1K
2 этаж
от 26 149 800 ₽
→
Дом по проекту «ЗС 590-20» - Золотое Сечение
4 спальн. · 2 санузл.
от 26 125 000 ₽
→
Проект S-287-1K
3 этаж
от 26 108 800 ₽
→
Проект L-319-1K
2 этаж
от 26 149 800 ₽
→
Проект дома N-320-1P
3 этаж
от 22 330 000 ₽
→
Проект U-319-1P
2 этаж
от 22 332 800 ₽
→
На сайт застройщика