Перейти к контенту
Подбор и сравнение проектов домов от застройщиков Московской области
Подборщик домов
Калькулятор сметы
Калькулятор площади
Форум
Блог
Главная
›
Каталог проектов
›
Проект E-319-1K
Проект E-319-1K
Застройщик: Юникс-Строй
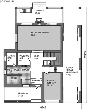
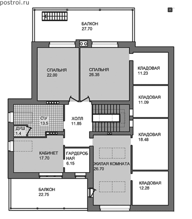
348.7 м²
1 / 3
🏠
348.7 м²
📐
2 этаж
🧱
Кирпич
Похожие проекты
Похожие по цене
Похожие по площади
Проект «Dals»
2 этаж
от 28 600 000 ₽
→
Проект «Dals»
2 этаж
от 28 600 000 ₽
→
Проект M-409-1P
3 этаж
от 28 616 000 ₽
→
Проект N-348-1K
3 этаж
от 28 560 600 ₽
→
Проект W-348-1K
2 этаж
от 28 544 200 ₽
→
Проект К-153 13 на 13, площадью 348 за 11 550 750 руб
7 спальн. · 2 этаж
от 11 550 750 ₽
→
На сайт застройщика